BENDS.

    • NEWS
    • ABOUT
    • PROJECTS
    • CONTACT

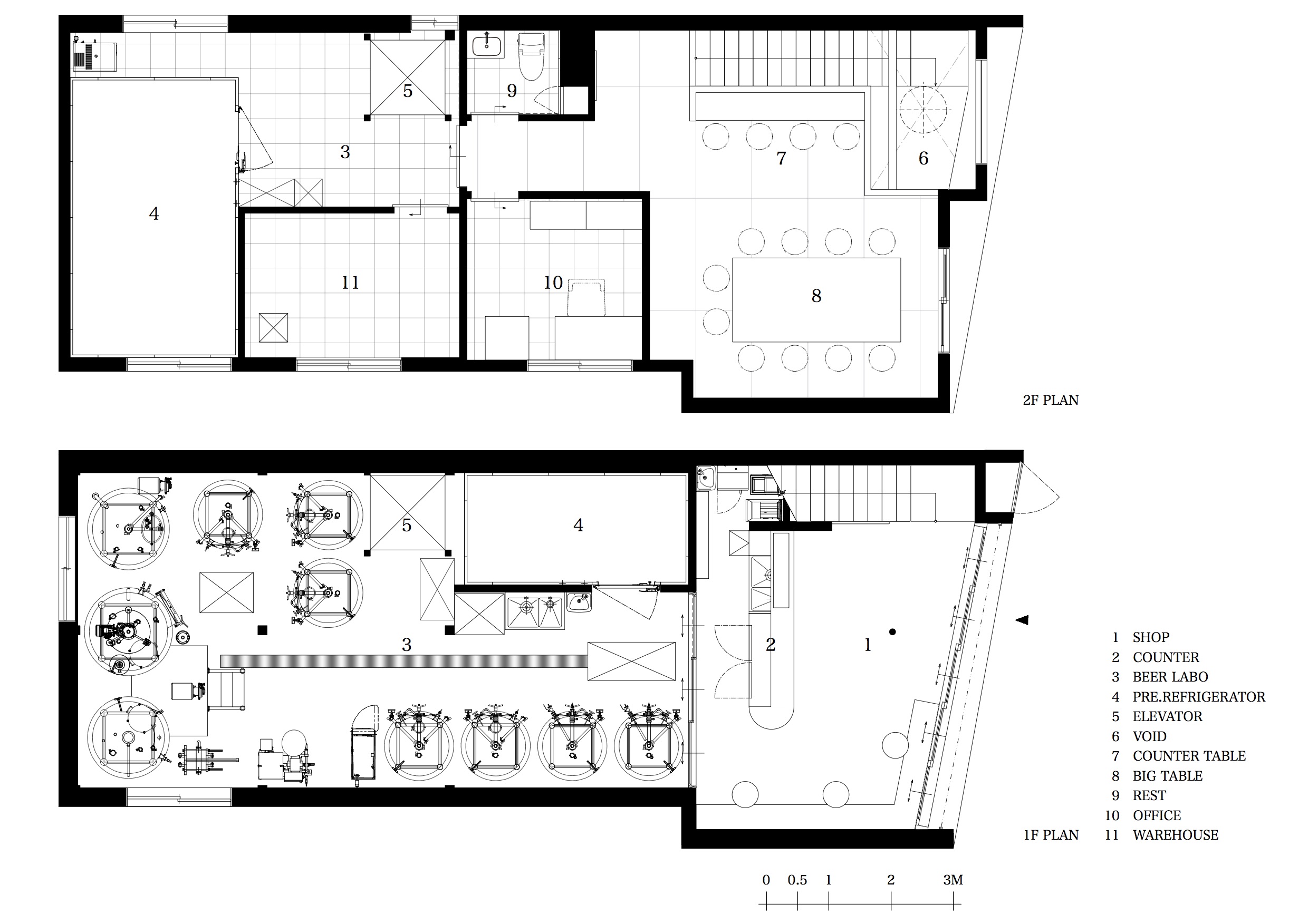
BAK HORIE Brewing Studio

PHOTO:Daisuke Shima/adhoc

< PREV NEXT >
© BENDS. all rights reserved.InstagramFacebook